Ham Sur Heure - Archives du PFT - TSP.

Auteur TH: Thierri Heylen. © pour tous les documents publiés.

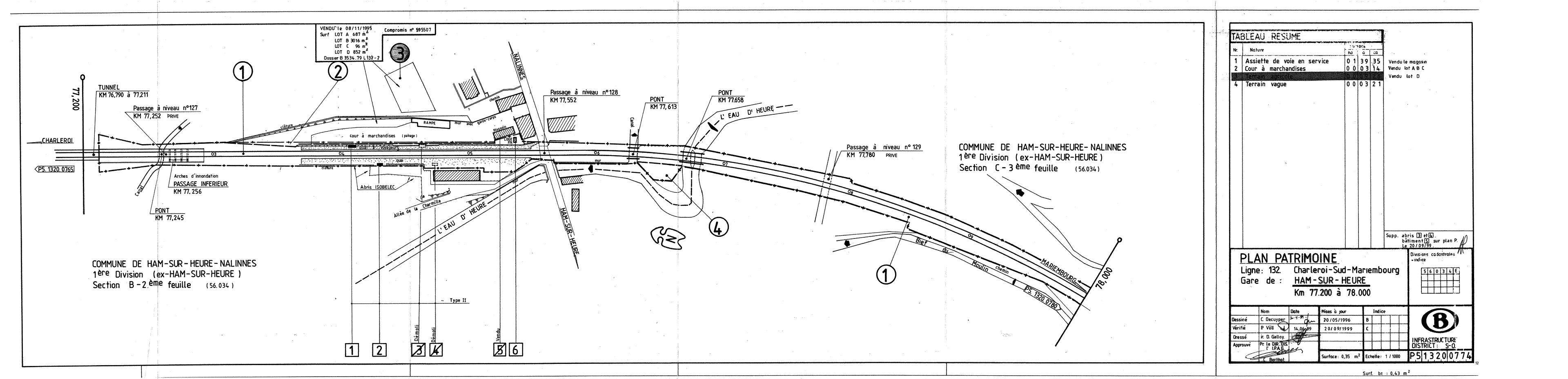
Cliquer sur une image pour l'agrandir.

Ham-sur-Heure (2).jpg
Ham-sur-Heure - TH 83-8078.jpg
Ham-sur-Heure.jpg
HAM SUR HEURE  DIA 83-8086.jpg
Retour menu H.